Back to MedicalMissions.com
Close
Home
What's New
Store
Stories
Content Resources
Members
Job Directory
Organizations
Podcast
Universities
Doctors
Log In
GMHC 2018
2018 Global Missions Health Conference
November 8-10, 2018
Louisville, KY
Physical event
Overview
Speakers
Sessions
Travel
Exhibitors
Downloads
FAQ
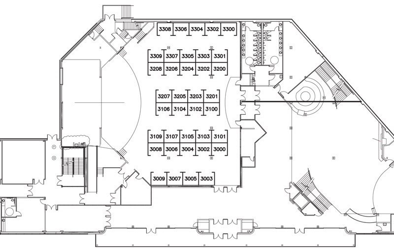
Exhibitors - Booth Maps
Explore the exhibit hall. Hover over a booth to see which organization is exhibiting at the booth.
List View
Key:
Occupied:
Open:
Main Building, Fellowship Hall #1 FH1
Main Building, Fellowship Hall #2 FH2
Student Building (Block), Block Auditorium Auditorium